计算机的硬件儿细指什么其中各个部分有什么功能输入设备,输出设备,运算器,控制器,存储器 1、运算器 运算器是进行算术、逻辑运算的部件。 2、控制器 控制器是实现计算机各部分联
基于深度学习美颜相机设计任务书怎么写
美颜相机能拍出哪些效果来?
美颜相机有很多优势,比如说可以拍出很多效果,其具体优势如下: 第一、 “美颜”是一个深度学习+图像处理+图形学的技术。美颜技术之所以会进步,是因为有更多人开始关注自己的照片美不美这件事情,有了市场自然就促进美颜产品的争奇斗艳。所以美颜技术进步这一现象,本身就折射出更多人对于美之追求的觉醒,这就是一种审美进步,因为人们开始探索,什么是美,怎么样拍照才更美,我好像眼睛放大一点才好看,我好像更白一点更好看,人类对美的觉醒给予了美颜技术诞生的空间,而美颜技术的问世又更加促进了人们审美的觉醒。 第二、对方或许会说,难道以前,没有美颜技术的时候,人们就不追求美了吗?这就是我方要论证的第二个点,一项技术的进人工智能,机器学习与深度学习,到底是什么关系
有人说,人工智能(AI)是未来,人工智能是科幻,人工智能也是我们日常生活中的一部分。这些评价可以说都是正确的,就看你指的是哪一种人工智能。
今年早些时候,Google DeepMind的AlphaGo打败了韩国的围棋大师李世乭九段。在媒体描述DeepMind胜利的时候,将人工智能(AI)、机器学习(machine learning)和深度学习(deep learning)都用上了。这三者在AlphaGo击败李世乭的过程中都起了作用,但它们说的并不是一回事。
今天我们就用最简单的方法——同心圆,可视化地展现出它们三者的关系和应用。
向左转|向右转

如上图,人工智能是最早出现的,也是最大、最外侧的同心圆;其次是机器学习,稍晚一点;最内侧,是深度学习,当今人工智能大爆炸的核心驱动。
五十年代,人工智能曾一度被极为看好。之后,人工智能的一些较小的子集发展了起来。先是机器学习,然后是深度学习。深度学习又是机器学习的子集。深度学习造成了前所未有的巨大的影响。
从概念的提出到走向繁荣
1956年,几个计算机科学家相聚在达特茅斯会议(Dartmouth Conferences),提出了“人工智能”的概念。其后,人工智能就一直萦绕于人们的脑海之中,并在科研实验室中慢慢孵化。之后的几十年,人工智能一直在两极反转,或被称作人类文明耀眼未来的预言;或者被当成技术疯子的狂想扔到垃圾堆里。坦白说,直到2012年之前,这两种声音还在同时存在。
过去几年,尤其是2015年以来,人工智能开始大爆发。很大一部分是由于GPU的广泛应用,使得并行计算变得更快、更便宜、更有效。当然,无限拓展的存储能力和骤然爆发的数据洪流(大数据)的组合拳,也使得图像数据、文本数据、交易数据、映射数据全面海量爆发。
让我们慢慢梳理一下计算机科学家们是如何将人工智能从最早的一点点苗头,发展到能够支撑那些每天被数亿用户使用的应用的。
|人工智能(Artificial Intelligence)——为机器赋予人的智能
向左转|向右转

早在1956年夏天那次会议,人工智能的先驱们就梦想着用当时刚刚出现的计算机来构造复杂的、拥有与人类智慧同样本质特性的机器。这就是我们现在所说的“强人工智能”(General AI)。这个无所不能的机器,它有着我们所有的感知(甚至比人更多),我们所有的理性,可以像我们一样思考。
人们在电影里也总是看到这样的机器:友好的,像星球大战中的C-3PO;邪恶的,如终结者。强人工智能现在还只存在于电影和科幻小说中,原因不难理解,我们还没法实现它们,至少目前还不行。
我们目前能实现的,一般被称为“弱人工智能”(Narrow AI)。弱人工智能是能够与人一样,甚至比人更好地执行特定任务的技术。例如,Pinterest上的图像分类;或者Facebook的人脸识别。
这些是弱人工智能在实践中的例子。这些技术实现的是人类智能的一些具体的局部。但它们是如何实现的?这种智能是从何而来?这就带我们来到同心圆的里面一层,机器学习。
|机器学习—— 一种实现人工智能的方法
向左转|向右转

机器学习最基本的做法,是使用算法来解析数据、从中学习,然后对真实世界中的事件做出决策和预测。与传统的为解决特定任务、硬编码的软件程序不同,机器学习是用大量的数据来“训练”,通过各种算法从数据中学习如何完成任务。
机器学习直接来源于早期的人工智能领域。传统算法包括决策树学习、推导逻辑规划、聚类、强化学习和贝叶斯网络等等。众所周知,我们还没有实现强人工智能。早期机器学习方法甚至都无法实现弱人工智能。
机器学习最成功的应用领域是计算机视觉,虽然也还是需要大量的手工编码来完成工作。人们需要手工编写分类器、边缘检测滤波器,以便让程序能识别物体从哪里开始,到哪里结束;写形状检测程序来判断检测对象是不是有八条边;写分类器来识别字母“ST-O-P”。使用以上这些手工编写的分类器,人们总算可以开发算法来感知图像,判断图像是不是一个停止标志牌。
这个结果还算不错,但并不是那种能让人为之一振的成功。特别是遇到云雾天,标志牌变得不是那么清晰可见,又或者被树遮挡一部分,算法就难以成功了。这就是为什么前一段时间,计算机视觉的性能一直无法接近到人的能力。它太僵化,太容易受环境条件的干扰。
随着时间的推进,学习算法的发展改变了一切。
|深度学习——一种实现机器学习的技术
向左转|向右转

人工神经网络(Artificial Neural Networks)是早期机器学习中的一个重要的算法,历经数十年风风雨雨。神经网络的原理是受我们大脑的生理结构——互相交叉相连的神经元启发。但与大脑中一个神经元可以连接一定距离内的任意神经元不同,人工神经网络具有离散的层、连接和数据传播的方向。
例如,我们可以把一幅图像切分成图像块,输入到神经网络的第一层。在第一层的每一个神经元都把数据传递到第二层。第二层的神经元也是完成类似的工作,把数据传递到第三层,以此类推,直到最后一层,然后生成结果。
每一个神经元都为它的输入分配权重,这个权重的正确与否与其执行的任务直接相关。最终的输出由这些权重加总来决定。
我们仍以停止(Stop)标志牌为例。将一个停止标志牌图像的所有元素都打碎,然后用神经元进行“检查”:八边形的外形、救火车般的红颜色、鲜明突出的字母、交通标志的典型尺寸和静止不动运动特性等等。神经网络的任务就是给出结论,它到底是不是一个停止标志牌。神经网络会根据所有权重,给出一个经过深思熟虑的猜测——“概率向量”。
这个例子里,系统可能会给出这样的结果:86%可能是一个停止标志牌;7%的可能是一个限速标志牌;5%的可能是一个风筝挂在树上等等。然后网络结构告知神经网络,它的结论是否正确。
即使是这个例子,也算是比较超前了。直到前不久,神经网络也还是为人工智能圈所淡忘。其实在人工智能出现的早期,神经网络就已经存在了,但神经网络对于“智能”的贡献微乎其微。主要问题是,即使是最基本的神经网络,也需要大量的运算。神经网络算法的运算需求难以得到满足。
不过,还是有一些虔诚的研究团队,以多伦多大学的Geoffrey Hinton为代表,坚持研究,实现了以超算为目标的并行算法的运行与概念证明。但也直到GPU得到广泛应用,这些努力才见到成效。
我们回过头来看这个停止标志识别的例子。神经网络是调制、训练出来的,时不时还是很容易出错的。它最需要的,就是训练。需要成百上千甚至几百万张图像来训练,直到神经元的输入的权值都被调制得十分精确,无论是否有雾,晴天还是雨天,每次都能得到正确的结果。
只有这个时候,我们才可以说神经网络成功地自学习到一个停止标志的样子;或者在Facebook的应用里,神经网络自学习了你妈妈的脸;又或者是2012年吴恩达(Andrew Ng)教授在Google实现了神经网络学习到猫的样子等等。
吴教授的突破在于,把这些神经网络从基础上显著地增大了。层数非常多,神经元也非常多,然后给系统输入海量的数据,来训练网络。在吴教授这里,数据是一千万YouTube视频中的图像。吴教授为深度学习(deep learning)加入了“深度”(deep)。这里的“深度”就是说神经网络中众多的层。
现在,经过深度学习训练的图像识别,在一些场景中甚至可以比人做得更好:从识别猫,到辨别血液中癌症的早期成分,到识别核磁共振成像中的肿瘤。Google的AlphaGo先是学会了如何下围棋,然后与它自己下棋训练。它训练自己神经网络的方法,就是不断地与自己下棋,反复地下,永不停歇。
|深度学习,给人工智能以璀璨的未来
深度学习使得机器学习能够实现众多的应用,并拓展了人工智能的领域范围。深度学习摧枯拉朽般地实现了各种任务,使得似乎所有的机器辅助功能都变为可能。无人驾驶汽车,预防性医疗保健,甚至是更好的电影推荐,都近在眼前,或者即将实现。
人工智能就在现在,就在明天。有了深度学习,人工智能甚至可以达到我们畅想的科幻小说一般。你的C-3PO我拿走了,你有你的终结者就好了。
人工智能,大数据与深度学习之间的关系和差异
说到人工智能(AI)的定义,映入脑海的关键词可能是“未来”,“科幻小说”,虽然这些因素看似离我们很遥远,但它却是我们日常生活的一部分。语音助手的普及、无人驾驶的成功,人工智能、机器学习、深度学习已经深入我们生活的各个场景。例如京东会根据你的浏览行为和用户的相似性,利用算法为你推荐你需要的产品;又比如美颜相机,会基于你面部特征的分析,通过算法精细你的美颜效果。还有众所周知的谷歌DeepMind,当AlphaGo打败了韩国职业围棋高手Lee Se-dol时,媒体描述这场人机对战的时候,提到了人工智能AI、机器学习、深度学习等术语。没错,这三项技术都为AlphaGo的胜利立下了汗马功劳,然而它们并不是一回事。
人工智能和机器学习的同时出现,机器学习和深度学习的交替使用......使大部分读者雾里看花,这些概念究竟有何区别,我们可以通过下面一个关系图来进行区分。

图一:人工智能、机器学习、深度学习的关系
人工智能包括了机器学习和深度学习,机器学习包括了深度学习。人工智能是机器学习的父类,机器学习则是深度学习的父类。
人工智能(Artificial Intelligence,AI)是计算机科学的一个分支,它企图了解智能的实质,并生产出一种新的与人类智能相似的方式作出反应的智能机器,它不是人的智能,但能像人那样思考、也可能超过人的智能。
人工智能实际应用:机器视觉,指纹识别,人脸识别,视网膜识别,虹膜识别,掌纹识别,专家系统,自动规划,智能搜索,定理证明,博弈,自动程序设计,智能控制,机器人学,语言和图像理解,遗传编程等。人工智能目前也分为:强人工智能(BOTTOM-UPAI)和弱人工智能(TOP-DOWNAI)。
机器学习(Machine Learning,ML)是人工智能的核心,属于人工智能的一个分支。机器学习是指从数据中自动分析获得规律,并利用规律对未知数据进行预测的算法,所以机器学习的核心是数据、算法(模型)、算力(计算机运算能力)。
机器学习应用领域:数据挖掘、数据分类、计算机视觉、自然语言处理(NLP)、生物特征识别、搜索引擎、医学诊断、检测信用卡欺诈、证券市场分析、DNA序列测序、语音和手写识别、战略游戏和机器人运用等。
深度学习(Deep Learning,DL):是机器学习研究中的一个新的领域,其动机在于建立、模拟人脑进行分析学习的神经网络,它模仿人脑的机制来解释数据。
数据挖掘(Data Mining,DM),顾名思义是指利用机器学习技术从海量数据中“挖掘”隐藏信息,主要应用于图像、声音、文本。在商业环境中,企业希望让存放在数据库中的数据能“说话”,支持决策。所以数据挖掘更偏向于应用。

图二:数据挖掘与机器学习的关系
机器学习是数据挖掘的一种重要方法,但机器学习是另一门学科,并不从属于数据挖掘,二者相辅相成。数据挖掘是机器学习和数据库的交叉,主要利用机器学习提供的技术来分析海量数据,利用数据库界提供的技术来管理海量数据。
不管是人工智能、机器学习、深度学习还是数据挖掘,目前都在解决共同目标时发挥了自己的优势,并为社会生产和人类生活提供便利,帮助我们探索过去、展示现状、预测未来。
手机卡实名认证拍照为什么是美颜相机?
小美和朋友好久不见了,尽管俩人在一座城市打拼,因为各自行程不一致,常常三五个月都见不了面。这周末,她们的日程终于合上了,约在一家火锅店碰头。 开饭前,好友拿出手机:“小美,咱俩这么久没见了,自拍一下呗。” “好啊!”小美凑过去,比了个剪刀手,“快,发朋友圈我给你点赞。” 10分钟过去了…… 小美:“亲爱的,你在干嘛呢,怎么这么久都不发。” 好友:“别急,我在P图呢,我把脸P小点,还有后面那个灭火器太煞风景了。” 小美差点没把刚喝的水喷出来,什么年代了还P图!说着拿自己手机拉着好友自拍一张:“看,自带瘦脸、美白、祛痘、长腿功能,根本不用P~” “呀,你这个手机堪比单反了哎,后面的灭火器都虚化了,Python 与深度学习有哪些与建筑设计相接轨的可能性
关注这个问题快一周了,到目前来说还是没发现什么太大的惊喜。我感觉建筑设计界还是要学习一个,不要看到深度学习很火,就弄个大新闻,把这玩意往建筑设计上搬呀。
其实深度学习这事儿到底怎么就能和建筑设计挂钩上?如果单单指“深度学习”,那我的理解是套用了许多层的人工神经网络,这种技术能在建筑设计中扮演什么角色?我目前还真没发现直接用深度学习这种技术来辅助建筑设计的例子。但是如果把题主提问的概念放宽松一点,变成“如何使用机器学习等算法来帮助建筑设计”,那我想还是有比较好的例子的。
机器学习技术是用来让程序的运行性能随着输入量和时间的积累慢慢提高的一种技术。例如你写了一个程序来预测一栋别墅的房价,这个程序的作用是能根据输入数据的[城市,街道,区位,面积,户型,..]等参数预测房价,为了提高程序预测的准确度,你需要先给程序喂一些已经有了估价结果的数据,程序学习一定的数据以后就能自己预测房价了。那么,这种程序工作的方式和我们做建筑设计的工作流程有什么联系呢? 我们做设计时,同样也是先调研和参考大量同类建筑的案例,积累到一定量以后,才能自己动手开始做设计。了解了这一点,便可以设想一种利用机器学习来辅助建筑设计的思路:先让程序学习以前的建筑设计方案,然后程序就能自己去做设计了!
这篇2010年的论文 Computer-generated residential building layouts 可以说就是以上思路的典范。作者自称“使用数据驱动的方式设计了能自动创建视觉效果非常好的建筑布局的工具”,但我觉得论文的质量是远远超过了这样谦逊的描述,因为论文实现的思路极大程度借鉴了现实中建筑师开展设计工作的流程,而且用了贝叶斯网络这个非常漂亮的数学模型描述了一个建筑program在空间中的分布,而贝叶斯网络的训练数据全部来自真实的建筑师的设计方案。个人认为用机器学习的思路去处理建筑布局问题相比于过去十年来Shape Grammar的那种Procedural Modeling的思路来得更为正确。
论文是怎么展开的呢?首先,作者总结了前人工作,说明了以前基于穷举的算法都行不通,要在3D空间中去穷举这么复杂的空间分配问题就和猴子随意敲键盘得到一部莎士比亚作品的难度差不多。接着作者又批判了上个世纪90年代Muller搞的Shape Grammar那一套也不行,因为Shape Grammar就是图形语法,我们知道,编程语言是是基于有限规则的语法集生成的,而建筑设计中这样的规则条款很难形式化描述,而且会倾向于让语法数量变得无穷多。顺带一提,几十年前计算机科学家在攻克语音识别和机器翻译难题的时候,也是认为自然语言是完全基于有限的规则生成的,但后来才发现行不通,直到后来改成基于统计的方法进行研究后,才有了突破性进展。 那么shape grammar不适合建筑设计的另外一点在于,建筑设计不是玩弄图形变换的游戏,每一个建筑空间都有基于功能,心理和效用等因素的考虑。之前也有过用shape grammar分析赖特壁炉式住宅的语法规则的论文,但是应用范围实在太窄。所以这条路是走不通的。
论文作者认为,做方案,一定要基于人的舒适和心理需求,习惯和社会关系等因素,将他们综合考量后才会有比较合理的结果。例如,房间的形状最好是凸包而不要做成凹的,因为在采光上,家具摆放和视线上方正规整的形体都更优;建筑各个功能要形成开放性 - 私密性的梯度,因为这正反映了建筑被使用的方式。 为了研究更好的方法,作者去找到了一家建筑事务所的建筑师们向他们咨询职业建筑师的工作方式,得到了一个特别有用的结论:建筑师在初期和客户咨询后,在画平面的详图之前,一般都会用泡泡图来思考问题,而泡泡图则反映了一个建筑方案高度浓缩的信息,包括私密性,房间邻接关系,采光,业主喜好和文化习俗。

泡泡图在在建筑师看来是展开方案设计工作的第一步,在计算机科学家看来则是一种复杂的数据结构——图。从使用者或者任务书弄出一张泡泡图是建筑师专业能力的体现,不管这种能力是基于长期训练的素养也好,还是临时起意的构想也好,我们知道这张图包含的信息量很大就对了。 那现在问题是,如何让计算机来生成这样一张泡泡图呢?
这个时候就要轮到本回答开始的机器学习算法登场了。作者用来一个概率图模型——贝叶斯网络来描述建筑师做出来的泡泡图。用人话说,就是用这玩意来描述建筑方案中每一个部分在空间中的概率分布。好像说起来还是不太容易懂,但总之,我们知道了,这个模型可以让电脑知道对应一个成功的建筑方案,客厅、卧室和走廊等出现在某些位置的概率比出现在另外一些的位置的概率高,而概率高的位置正是合理的位置,这样就更容易生成好的方案。
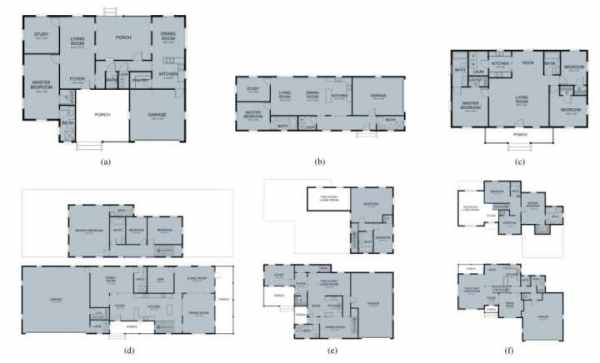
针对贝叶斯网络的训练,作者搞了120套住宅建筑方案作为训练数据来喂给程序吃。现在程序总算是知道建筑方案的基本做法了,以下就是基于贝叶斯网络生成的泡泡图:
搞定了泡泡图之后,怎么从这玩意生成建筑平面呢? 作者几经周折,最后用了Metropolis算法来搞定。具体的生成过程描述都在论文里面有写,我就不详细写了(其实是看不懂。) 再下一步是生成3D模型,作者比较自豪地说,他搞的这个算法真正实现了多层建筑方案的生成,而以前的基本只能生成单层的平面,作用有限。以下是一些成果:搞定了泡泡图之后,怎么从这玩意生成建筑平面呢? 作者几经周折,最后用了Metropolis算法来搞定。具体的生成过程描述都在论文里面有写,我就不详细写了(其实是看不懂。) 再下一步是生成3D模型,作者比较自豪地说,他搞的这个算法真正实现了多层建筑方案的生成,而以前的基本只能生成单层的平面,作用有限。以下是一些成果:
6张平面有几张是人做的方案,剩下的都是机器做的,大家可以猜一下机器做的是哪几个。答案论文里面有说。6张平面有几张是人做的方案,剩下的都是机器做的,大家可以猜一下机器做的是哪几个。答案论文里面有说。
最后是生成的3D模型,家具是手工布置的。还是颇具真实度呢!

作者最后提到,准备把这个东西运用到更多的建筑类型上,例如办公楼等。如果这玩意儿成熟,再也不用担心建筑师不失业了,偶也!
最后我再说说对这玩意的评价吧。最近几十年知识工作的自动化简直如火如荼地吹遍天南地北的各个行业,许多人都担心低端的劳动职位会不会被取代,例如驾驶汽车,快递,写新闻稿,翻译,速记等等等,这种担心真的不是毫无理由啊!当优雅简洁的数学模型遇到计算机这个可以暴力计算的机器,结合起来就创造了一类又一类可成规模复制的智能机器,想想还是让人后怕的。不过也不用太担心就是,建筑设计行业人所占的因素还是很大的,很多时候甲方找人做设计,都是看重设计师本身,出了专业能力外,沟通,人格魅力,背景,执照等的背书也是很重要的,不过未来这种建筑界持续了很久的行业模式会不会被颠覆就不得而知了。另外,程序也需要吃许多训练数据才能提高自己的设计修养,在目前来看建筑设计的各位同行都把自己搜集的方案当成宝一样藏着,数据量的大而全也很难保证,不知道以后BIM的普及会不会让这方面得到改善。
相关文章
- 详细阅读
-
人工智能需要什么基础?详细阅读
人工智能需要什么基础?1.高等数学基础知识 首先,你是零基础的话,就先将高等数学基础知识学透,从基础的数据分析、线性代数及矩阵等等入门,只有基础有了,才会层层积累,不能没有逻辑
- 详细阅读
- 详细阅读
-
HY-80NM遥控器学习方法详细阅读
遥控器怎么学习1、操作机顶盒遥控器。长按“设置”键约3秒左右,提示灯会长亮,按住机顶盒遥控器上的学习按钮不放,大概2-3秒,等红灯一直常亮之后就可以了。2、操作电视机遥控器。
-
学习电脑技术大概要多少费用啊?详细阅读
想报一个电脑培训班要多少钱?电脑培训从3000元—30000元不等,电脑培训班要多少钱与培训课程专业和学员自身有关,主要是专业和时间。具体分析如下: 1、初级电脑培训班:初级电脑培
-
计算机中丢失facerec.dll详细阅读
为什么电脑关机时显示facerec.dll?怎么解决1应该是脸部识别程序的文件丢失,重新安装下即可 2上百度搜索这个DLL文件 然后下载下来 然后把它放进系统Dll文件夹 希望对你有所帮
-
计算机设计大赛提交作品必须设置密详细阅读
全国电脑设计大赛作品怎么做1.作品要求切合主题,内容积极健康。 2.作品必须是参赛者本人的原创作品。参赛者不得抄袭他人或使用含有虚假、伪造成份的作品参赛,否则立即取消参赛
-
linux学习难吗?linux要怎么学习?详细阅读
新手如何学习Linux?学习Linux步骤:
1、先了解了解基础吧,找一本薄一点的,浅一点的书,了解一下什么是linux。有个基本了解即可。不建议马上看《鸟哥的Linux私房菜》,这本书很不错,如 -
计算机已经从检测错误后重新启动。详细阅读
蓝屏0x0000003b原因蓝屏0x0000003b原因是一个意外的网络错误。1、要解决此蓝屏问题,可以尝试在打开计算机时选择进入安全模式。2、接下来在安全模式下,双击打开IE浏览器应用程
