云熙软件打不开咋回事亲,可能是因为你下载到盗版软件了【摘要】云熙软件打不开咋回事【提问】亲,可能是因为你下载到盗版软件了【回答】把它删除了重新安装试试【回答】因为还
基础梁的箍筋肢数,怎么计数,广联达BIM软件怎么输入合适?
建筑基础中这种梁在广联达软件中要怎么输?
这是条形基础的标注,应该有大样的,你可以看一下说明。 基础编号:JZL29 跨数:4 梁截面尺寸:400*1200 箍筋:A10@100/150 箍筋肢数:4 下部钢筋:4C25 上部钢筋:4C25 侧面钢筋:N6C16 侧面钢筋拉筋(L):A8@400 翼部横向钢筋(Y):C16@200 翼部纵向钢筋(Y):B12@150 这种基础一般软件利用条形基础和基础梁构件配合画的。希望能帮到你!广联达软件中梁箍筋在指定的尺寸内如何编辑
梁箍筋输入方法如下,相信你看后就知道如何输入了。箍筋 格式1:; 例如:A8-100/200(4); 格式2:;主要处理加密箍筋肢数与非加密箍筋肢数不同的设计方式。 在肢数属性中取加密区的箍筋肢数; 例如:A8-100(6)/200(4);广联达梁kl2(3A)在程序里怎么输入
在梁构件里,新建一个矩形梁,名称是KL2(3A) 梁截面宽度:250 梁截面高度:600 箍筋:A8@100/150 箍筋肢数:2 上通长筋:2C22 侧面钢筋:G2C12 梁起点顶标高:层顶标高-0.05 梁终点顶标高:层顶标高-0.05 按以上属性设置。 另外纠正一下1L的,(3A)的意思是这个梁有3跨带1跨悬挑,如果是两端悬挑的话,表示格式应该是(3B),A代表一端悬挑,B代表两端悬挑。广联达梁箍筋一端加密如何设置
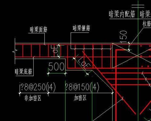
加密区长度为2倍的梁高和500mm取大值,最底层柱子的根部应取不小于1/3的该层柱净高。
根据抗震等级的不同,箍筋加密区设置的规定也不同。对于钢筋混凝土框架的柱子的端部和每层梁的两端都要进行加密。抗震等级为一级时,加密区长度为2倍的梁高和500mm取大值,抗震等级为二—四级时,加密区长度为1.5倍的梁高和500mm取大值。
柱子加密区长度应取柱截面长边尺寸(或圆形截面直径)、柱净高的1/6和500mm中的最大值。但最底层(一层)柱子的根部应取不小于1/3的该层柱净高。当有刚性地面时,除柱端箍筋加密区外尚应在刚性地面上、下各500mm的高度范围内加密。

扩展资料:
箍筋加密区设置要求规定:
1、用光圆钢筋制成的箍筋,其末端应有弯钩(半圆形、直角形或斜弯钩)。弯钩的弯曲内直径应大于受力钢筋直径,且不应小于箍筋直径的 2.5倍。
2、梁净跨与截面高度之比不宜小于4,梁的截面宽度不宜小于梁截面高度的1/4,也不宜小于200mm。
3、矩形箍筋端部应有135°弯钩,弯钩伸入核心混凝土的平直部分长度不应小于20cm。
参考资料来源:百度百科-箍筋加密区
梁箍筋肢数怎么确定 钢筋肢数怎么看?
梁箍筋肢数在平法标注中的表示方法是♝8@100/200(2),括号内的数字2就是代表双肢箍。
小截面梁因宽度较小,相应产生的梁内剪力较小,采用单肢箍即可,类似于一个S钩。像一般的单个封闭箍筋,在高度方向就有两根钢筋,属于双肢箍。
再如,截面宽较大的同一截面采用两个封闭箍并相互错开高度方向就有四根钢筋,属于四肢箍,以此类推。

四肢箍形式是大箍套小箍;尽管两个双肢箍交错布置(等箍互套)曾经有过使用,但是大箍套小箍能够更好地保证梁的整体性。
在03G101-1标准图集中明确规定,复合箍筋应采用大箍套小箍,“应"就是“必须”的意思,尽管在11G101-1中没有强调“大箍套小箍”,不等于说多肢复合箍筋不应采用大箍套小箍的形式,这主要是因为经过这么多年的平法推广,“大箍套小箍”已经深入人心。
相关文章
- 详细阅读
- 详细阅读
-
win7旗舰版笔记本电脑64位重装系统详细阅读
win7旗舰版笔记本电脑64位重装系统要想电脑里面的所有的数据包括文件和软件都不丢失该怎么操作?数据能保证,绿色软件也没有问题。 其他的软件重装系统后,只能再下载安装。 一般
-
如何退出360杀毒软件?详细阅读
如何关闭360安全卫士?在里面输入msconfig回车,然后呢点击启动,把图里面的勾给取消了,然后点击确定即可。下面给大家整理了相关的内容分享,感兴趣的小伙伴不要错过,赶快来看一下吧!1
-
国内智能合同软件哪家做的比较好?详细阅读
合同管理软件用哪家的好?当前市场我个人首推甄零科技的合同管理软件,甄零一诺智能合同管理系统是一款致力于为企业提供专业合同管理的产品,由上海甄零科技有限公司打造。甄零科
-
拼多多打单软件流程?易掌柜打单步骤详细阅读
拼多多使用易掌柜打单教程步骤是怎样的?配置都是免费打印的啊,你他妈非要用一打还要花钱去买呢,免费的多好,打印的话,如果你查的话再打印日志里面也可以查得到的,如果你要打发货单
-
一般常用的公司即时通讯软件有什么详细阅读
企业用的即时通讯软件有哪些?QQ MSN UC TM 目前有QQ、MSN、UC等聊天软件,它们各有特点 QQ:国内用户量第一。在2004年就已经拥有2.26亿注册用户、500多万收费用户,而且每天还在以
- 详细阅读
-
视频通话过程中禁止录屏的通讯软件详细阅读
视频通话的时候禁止录屏的通讯软件?做不到的。除非你能控制对方的手机,要不然对方用自己的手机录屏功能,现在录屏一般都是手机系统功能,不是安装软件就能控制的,所以你根本控制不
-
请问犀牛软件如何通过 一个圆+一个详细阅读
犀牛怎么建类似鸡蛋的弧面1先在弧面上花纹处确定自定义坐标,z轴垂直向上; 2然后将花纹中点垂直于z轴; 3最后把线投影到弧面上。 Rhinoceros(Rhino,犀牛)是由Bobert McNeel & Assoc
