CAD作图命令:VIEWBASS,出现Inventor Server 加载失败,要怎样解决?NVENTOR 是AUTODESK开发的设计三维模型的软件,但这是一个不成功的软件,所以很多人不知道它。你只安装了AUTOCAD,
cad2016上的带折弯角的图纸该怎么展开画出啊大哥求简单的公式
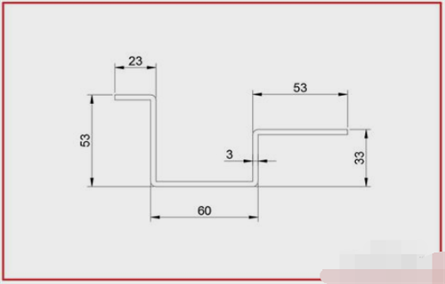
cad怎么画折弯图
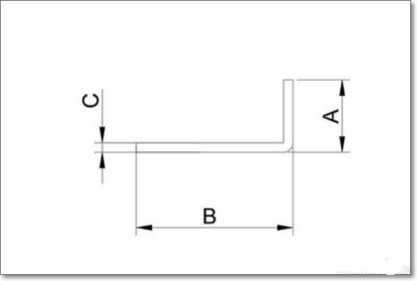
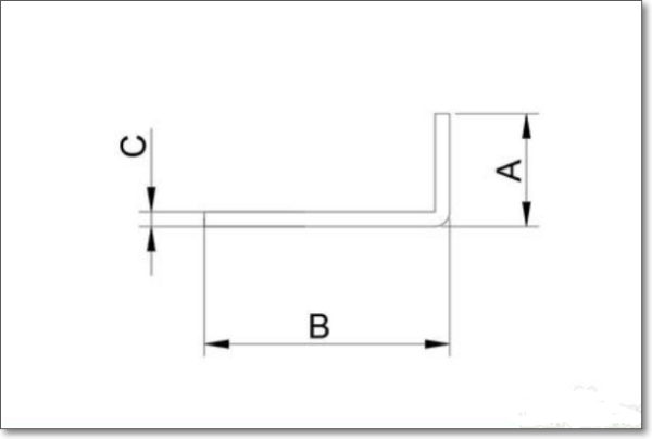
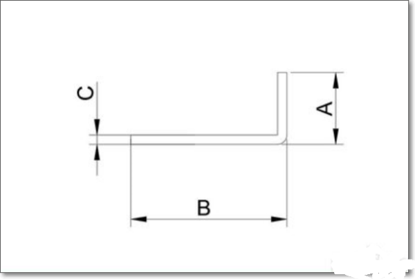
1、折弯工件展开尺寸的计算公式,展开尺寸=(A+B)-1.6*C*N,
A,B:是外形最大尺寸,C:板厚,
1.6:是铝板的折弯系数,N:是折弯的数量。

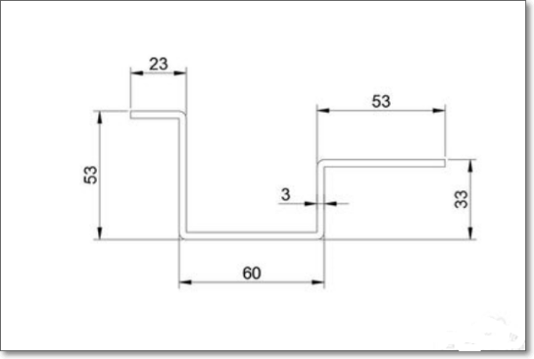
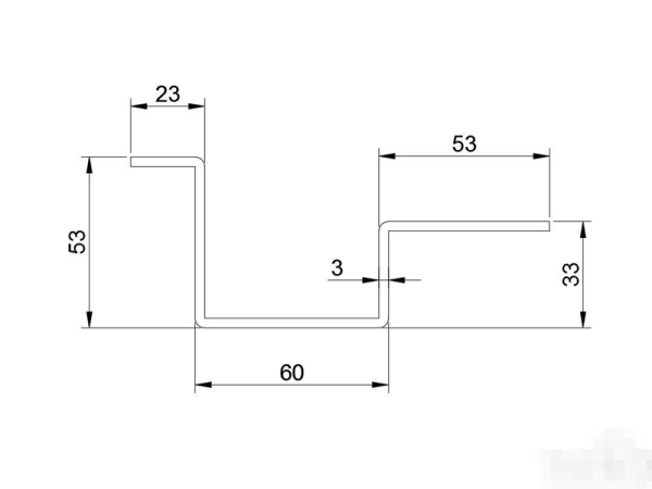
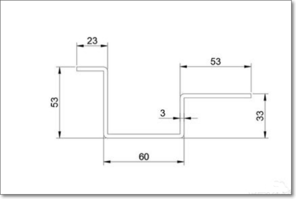
2、以下图的例子展开尺寸计算,(23+53+60+33+53)-3*1.6*4=202.8,

3、折弯工件的展开图,

4、展开图的折弯线的公式,E = A-(C*1.6)/2*N,N:是折弯的数量,

5、折弯工件展开图的折弯线,
20.6=23-3*1.6/2*1
48.2=53-3*1.6/2*2(两个折弯)
55.2=60-3*1.6/2*2(两个折弯)
28.2=33-3*1.6/2*2(两个折弯)
50.6=53-3*1.6/2*1

6、完成效果图。

CAD折弯图画成展开图怎么画?
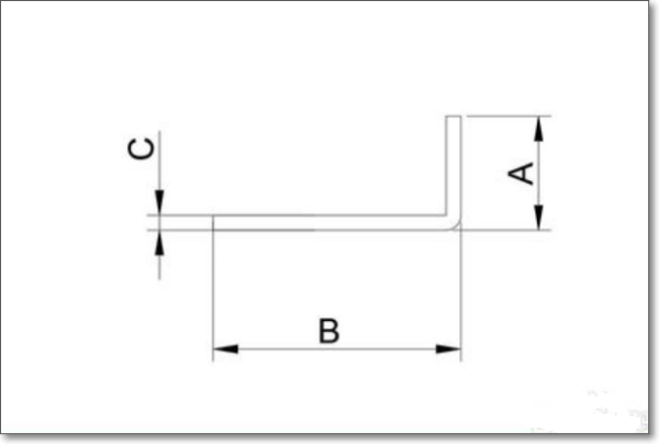
1、折弯工件展开尺寸的计算公式:展开尺寸=(A+B)-1.6*C*N,A、B:是外形最大尺寸;C:板厚;1.6:是铝板的折弯系数;N:是折弯的数量。

2、下图的展开尺寸计算(23+53+60+33+53)-3*1.6*4=202.8。

3、折弯工件的展开图。

4、展开图的折弯线的公式E = A-(C*1.6)/2*N,N:是折弯的数量。

5、折弯工件展开图的折弯线
20.6=23-3*1.6/2*1
48.2=53-3*1.6/2*2(两个折弯)
55.2=60-3*1.6/2*2(两个折弯)
28.2=33-3*1.6/2*2(两个折弯)
50.6=53-3*1.6/2*1。

CAD,折弯展开如何计算
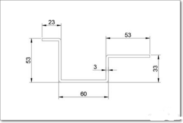
1、折弯工件展开尺寸的计算公式,展开尺寸=(A+B)-1.6*C*N,A,B:是外形最大尺寸,C:板厚,1.6:是铝板的折弯系数,N:是折弯的数量。

2、下图的展开尺寸计算(23+53+60+33+53)-3*1.6*4=202.8。

3、折弯工件的展开图,

4、展开图的折弯线的公式E = A-(C*1.6)/2*N,N:是折弯的数量。

5、折弯工件展开图的折弯线
20.6=23-3*1.6/2*1
48.2=53-3*1.6/2*2(两个折弯)
55.2=60-3*1.6/2*2(两个折弯)
28.2=33-3*1.6/2*2(两个折弯)
50.6=53-3*1.6/2*1

6、完成效果图。

你好,我学CAD两年了,是钣金方面的。不知道折弯展开图纸怎么画法?请教各位。
折弯展开图纸的画法:直接展开,用内尺寸加折弯系数就得出展开尺寸。
内尺寸加折弯系数的计算方法:
当折弯内R角小于等于材料厚度时,按尖角来展开,展开公式为:
22+56+0.8+56+0.8+22+0.8=158.4(22、56尺寸为外形减去材料厚度)。
折弯系数就是板材在折弯以后被拉伸的长度.材料不同,板厚不同,采用的折弯模具不同,折弯系数也不同。

扩展资料:
折弯展开图纸运用冲压展开系数计算折弯展开尺寸:
A:直边长度(两边为A1、A2) R:折弯内R大小 T:材料厚度 P:折弯展开系数 W:内R弯曲角度 π:3.1416
则:展开后展开长度为L=A1+A2+W/360*2*3.1416*R*P。
在计算机辅助设计中,交互技术是必不可少的。交互式CAD系统, 指用户在使用计算机系统进行设计时,人和机器可以及时地交换信息。采用交互式系统,人们可以边构思 、边打样、边修改,随时可从图形终端屏幕上看到每一步操作的显示结果,非常直观。
图形变换的主要功能是把用户坐标系和图形输出设备的坐标系联系起来;对图形作平移、旋转、缩放、透视变换 ;通过矩阵运算来实现图形变换。
参考资料来源:百度百科-折弯展开系数
参考资料来源:百度百科-CAD
怎么用CAD直接绘制展开图
具体操作步骤如下:
一、折弯工件展开尺寸的计算公式,展开尺寸=(A+B)-1.6*C*N,A,B:是外形最大尺寸,C:板厚,1.6:是铝板的折弯系数,N:是折弯的数量。

二、下图的展开尺寸计算,(23+53+60+33+53)-3*1.6*4=202.8。

三、折弯工件的展开图。

四、展开图的折弯线的公式,E = A-(C*1.6)/2*N,N:是折弯的数量。

五、折弯工件展开图的折弯线,20.6=23-3*1.6/2*1,48.2=53-3*1.6/2*2(两个折弯),55.2=60-3*1.6/2*2(两个折弯),28.2=33-3*1.6/2*2(两个折弯),50.6=53-3*1.6/2*1。

六、最中绘制的展开图,如图所示。

相关文章
- 详细阅读
-
有一进去就很多人给你发信息的聊天详细阅读
很多交友软件你刚登陆就有很多美女和你语音说话 是真实的吗?相信许多人都下载过一些交友软件 比如探探 陌陌之类的 还有一些小众的交友软件但是你真的知道这些里面的坑吗? 我
-
企业即时通讯软件都有哪些?有推荐的详细阅读
企业即时通讯软件都有哪些?有推荐的吗?钉钉,是阿里巴巴集团专为中国企业打造的免费沟通和协同的多端平台企业即时通讯软件都有哪些?有推荐的吗?一个老外贸人感叹道:“以前我们就知
-
看世界各个地方的软件是什么名字还详细阅读
有一个用卫星看世界各个角落的软件是什么啊Google earth Google Earth整合Google的本地搜索以及驾车指南两项服务,能够鸟瞰世界,将取代目前的桌面搜索软件。他可以在虚拟世界
-
快手人气协议,在哪个平台能下单?或者详细阅读
快手直播协议怎么购买你可能刚刚开始直播吧。挂协议只是一种行业述语,通常也叫直播人气。百度里搜,呱呱工作室。我也是相好的朋友介绍用的,不需要注册避免个人信息安全。主要是
-
cad编辑文字就会崩溃详细阅读
天正建筑+CAD2018双击编辑文字CAD崩溃这个问题我的电脑也是这样,在网上找一大堆,都是没有的回答,今天我给大家带来福音,我也是刚刚找到原因的,罪魁祸首就是你用了4K显示器,并且用
-
文件从电脑转移至iPhone,这需要软件详细阅读
电脑文件导入iphone一种方法: 使用iTunes软件进行传输 第一步: 首先在电脑的浏览器当中找到iTunes的官方软件,然后将它下载并安装到电脑当中,安装完成以后,对其进行相应的设置
-
养猪场管理软件有哪些?详细阅读
我是开养猪场的 ,想找适合自家猪场的管理软件?推荐你使用猪场管理软件哪个好客观的看,这个应该要看你厂子里的规模(母猪的头数),如果母猪不多,其实用Excel表就完全可以,用不着再去找
-
在MT4软件做现货黄金详细阅读
黄金交易软件MT4应当如何使用?MT4软件如何使用如下: MT4软件如何注册 首先就是MT4软件如何注册的问题。在首先使用时,一定要根据自身的实际信息进行相应的注册,成功之后,就可以解
-
CAD一张图中参照两个相同的图,如何详细阅读
如何在同一个CAD中的两个图一个图关掉的图层而在另一个上能显示这个图层在布局里面,用两个视口把这两张图分别显示出来,在想要关掉图层的那张图的视口里面,打开图层管理器,把那
