附近电脑培训班位置各地的电脑培训班位置是不一样的。
大多数培训班是在写字楼里面,就是地区比较繁华的地方,因为目前来看学习计算机的都会选择在这么一个地方。
再者电脑城里
哪里可以学习tekla软件
初级入门tekla教程
Tekla Structures是一款专门用于钢结构和混凝土建筑设计和施工的3D建模软件。以下是初学者入门Tekla教程的步骤:
1.下载和安装Tekla Structures软件。可以访问Tekla官网,免费获得30天免费试用版的下载链接。在安装过程中,需要填写个人信息和授权码。
2.掌握软件界面和基本工具。首次启动软件后,应花费一些时间了解各个工具栏的位置和用法。通过使用练习模型,并针对每个项目进行“手把手”操作,可以更好地掌握Tekla的操作方式。
3.创建模型。Tekla的主要特点是“模型为王”,它通过3D模型绘制来创建建筑结构。根据建筑图纸,可以逐步拆解并绘制出墙壁、楼梯、屋顶等建筑构件,以及梁和柱、板块等钢结构元素。

4.配置建筑材料和特性。在绘制建筑构件过程中,需要配置结构元素的材料和特性,如钢材和混凝土的品种、强度、精度等。这有助于建筑设计更真实、更准确地反映实际建筑。
5.进行建筑构件的设置和编辑。通过安置、铸造、分配材料等方法,可以对建筑构件进行布局,并按照具体要求进行编辑设置。例如,可以调整构件的尺寸、角度、倾斜度或颜色等。
6.添加设备和附件。使用Tekla软件的优势之一是,可以添加具体的设备和附件,以提供更现实、更详细的建筑模型。如楼梯、电梯、排水系统等。
7.开始渲染和输出。当模型绘制完成,并成功配置了各种材料和特性后,可以使用Tekla软件的渲染和输出功能,生成建筑模型和标记,并输出为不同的文件格式,以便交付给相关人员。

以上仅为初级入门Tekla教程,因为Tekla软件功能广泛,需要不断的实践以及学习时间的积累。刚开始时需要耐心倾听,认真阅读相关教材资料,多问问顾问以获得支持和建议。
河南有没有Tekla钢结构培训班?
有的,我虽然是自学的,自学了三个月搞定。但我的同事有两个是参加培训的,学了一个月,效果还行吧,就在河南当地,叫大鼎tekla工作室吧可能,我感觉虽然没我学的透,但比自己摸索还是快多了。bim建筑模型软件哪个免费?
建筑BIM软件免费版,不需要费用。常规的BIM软件有Revit、Navisworks等,可下载破解版软件进行安装,无需费用,学习熟练后看情况使用正版软件或者插件。
一般的破解软件安装包可去“中国Revit论坛”、“中国BIM网“等BIM论坛找,找学习教程资源和讨论学习都可以。起源于飞机设计,是最强大的三维CAD软件,有独一无二的曲面建模能力,应用于最复杂、最异形的三维建筑设计中。

软件须知
1、Revit:它是Autodesk公司一套系列软件的名称。Revit系列软件是为建筑信息模型(BIM)构建的,可帮助建筑设计师设计、建造和维护质量更好、能效更高的建筑。优秀的三维建筑设计软件,集3D建模展示、方案和施工图于一体,使用简单,但复杂建模能力有限,且由于对中国标准规范的支持问题,结构、专业计算和施工图方面还难以深入应用。
2、Tekla:钢结构详图设计软件,它是通过首先创建三维模型以后自动生成钢结构详图和各种报表。
3、MagiCAD:是高性能的通用程序,可以广泛用于从简单的办公楼、学校,到非常复杂的医院以及工业厂房等各类工程项目的设计、制图和管理中。
tekla2020入门教程
Tekla Structures 2020是一款领先的建筑信息建模(BIM)软件,广泛应用于建筑、结构工程和预制混凝土行业。它具有强大的3D建模功能,可以生成详细的结构设计、制造和施工图纸。本教程将为您提供Tekla Structures 2020入门知识。
1. 安装与启动:首先,确保您的计算机满足软件的系统要求,然后从官方网站下载并安装Tekla Structures 2020。启动软件后,您将看到启动屏幕,您可以从中选择创建新项目或打开现有项目。

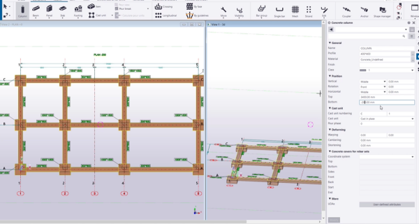
2. 用户界面:熟悉软件的用户界面至关重要。主要部分包括菜单栏、工具栏、侧边栏和视图工具栏。菜单栏包含了大部分功能命令,工具栏提供了常用的绘图和编辑工具,侧边栏包含了模型的对象属性和属性管理器,视图工具栏则帮助您浏览和操纵3D模型。

3. 创建项目:在开始绘制模型之前,您需要创建一个新项目。在新项目对话框中,输入项目名称、路径和其他相关信息。选择项目模板(例如钢结构或预制混凝土),系统将自动加载相应的材料库和参数设置。

4. 绘制模型:使用工具栏上的绘图工具,在视图中绘制构件(如梁、柱和板)。通过单击对象并在属性管理器中修改其属性,如材料、尺寸和位置,来定义对象的详细信息。

5. 组件与连接:在结构模型中,使用“构件”和“连接”功能将各个构件组合在一起。连接包括连接板、螺栓、焊缝等,可以在属性管理器中进行详细配置。

6. 生成图纸:模型完成后,您可以使用“图纸编辑器”创建工程图纸。软件将自动为您生成平面图、立面图和剖面图。您还可以添加注释、尺寸和详图,以便施工和制造过程中的参考。

7. 模型检查与导出:在输出图纸之前,请务必检查模型的准确性和完整性。您还可以将模型导出到其他BIM软件,如Revit、ArchiCAD等,以便与其他专业人员协同工作。
通过遵循这些基本步骤,您将能够掌握Tekla Structures 2020的基本操作和功能。随着实践和经验的积累,您将能够更熟练地使用该软件完成更复
成人可以学习办公软件吗,学费多少,位置在哪里?需要学习多长课程
成人是可以学习软件的,学习的周期是不同的。主要的软件如下: Revit软件实训(土建、安装、市政、园林专业BIM) BIM5D软件实训(施工管理BIM) Civil3d软件实训(市政BIM) Infraworks软件实训(市政BIM) Naviswork软件实训(施工模拟) Lumion动画软件实训(动画展示) 橄榄山revit插件软件实训(BIM插件) Bentley软件实训(水电行业BIM) Tekla软件实训(钢结构BIM、装配式BIM) Catia软件实训(水电行业BIM、装配式BIM) CAD软件实训(绘制CAD图纸) 天正软件实训(绘制建筑施工图) Sketchup软件实训(三维建相关文章
-
您好 能告诉电脑培训班的具体位置详细阅读
-
广东省驾驶培训公众服务网注销显示详细阅读
ETC注销出现部中心渠道不支持指令注销怎么弄?如果您在尝试注销ETC时遇到了“部中心渠道不支持指令注销”的错误消息,这通常意味着您需要联系当地的ETC服务中心或相关部门以获
- 详细阅读
-
Tekla镜像时,不弹出删除复制这个选详细阅读
tekla中在手画模型时,有些构件需要复制或者镜像,很方便,但是tekla为什么有时候复制和镜像不过去呢这时候你需要定义一下工作平面,方法是:点击菜单栏视图选项---设置工作平面---平
-
如何在中国疾控中心妇幼中心儿童保详细阅读
谁能提供《妇幼保健机构健康教育管理规范》啊???谢谢了!给你参考一下:全国妇幼保健机构健康教育工作管理规范(试行) 更新时间: 2008-08-18 第一章 总 则 第一条 健康教育是以传播、
-
北京市义务教育入学服务平台信息已详细阅读
中国政务平台显示证件号已被注册,请直接登录,登陆不了,怎么办?亲~您好很高兴为您解答,政务证件号已被注册,登录不了可以试用以下方法:这时候你需要上网页,用浏览器搜索国家政务服务
-
果芽mba培训怎么样详细阅读
果芽mba培训怎么样果芽mba培训挺好的。
果芽mba成立这么多年来,一直专注于MBA/MPA/MEM考研领域,针对在职考生的特殊学习特点,设计了一系列的笔试课程,如《果芽MBA笔试全程班》 -
普乐蛙VR有做VR智慧教育的情景模拟详细阅读
普乐蛙VR交通安全教育体验馆设备厂家靠不靠谱?普乐蛙是做VR科普的,之前朋友在他们家买过华夏驾校,能真实模拟驾驶并进行训练考试,体验的内容挺真实的,能够真实的把现场场景都虚拟
- 详细阅读
- 详细阅读
