比较好的建筑工程信息网站有哪些?工程信息网站好不好用就见人见智了,从信息层来说,所有工程信息网站都差不多。个人认为天工网和瑞恒达是行业上做得比较好的2家网站。都是做了1
明框立柱什么情况下不设置插芯
幕墙立柱插芯需要固定吗
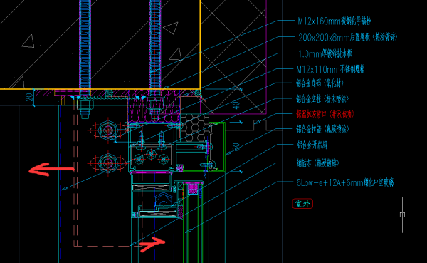
幕墙立柱插芯一般是用来连接幕墙玻璃和支撑结构的,为了保证幕墙的稳定性和安全性,插芯需要进行固定。 具体固定方式取决于插芯的类型和材质,一般情况下,插芯可以通过螺纹、粘结、焊接等方式来固定。同时,在固定插芯时需要考虑到幕墙的负载和风压等因素,选择适当的固定方式和固定位置,以确保幕墙的稳定和安全。玻璃幕墙立柱安装在楼层内,要用钢插芯才能固定立柱,怎样解决保留伸缩缝的情况下,快速准确的安装立柱?
上立柱的挂接钢插芯,要保证内外有调节进出位的空间

下面就不是问题了,钢插芯和上面的不一样,放铝材墙体内,间隙要紧凑,穿到墙体里,可前后左右随立柱摆动,调整垂直度和分格间距后,下面钢插芯直接焊接到埋板上,为了防止插芯的间隙存在晃动噪音,立柱底部开长条孔,打自钻钉固定到插芯上(不能拧靠,便于上下伸缩,就是拧紧了,也挡不住伸缩)

如果我的回答有帮助,请大家点个赞、关注一下,您的鼓励会让我一如既往的为大家提供帮助,谢谢!请看我历史回答,这方面的内容很多的,请点赞关注
求助,玻璃幕墙立柱中的插芯的长度如何确定及其作用
插芯每端插入立柱的长度,不小于立柱截面高度的2倍,所以连接上下两根立柱的插芯长度应该不小于 4X立柱截面高+20mm(伸缩缝)。 插芯作用主要是传递剪力。玻璃幕墙立柱可以用插芯代替固定吗
一般插芯插入长度不低于250mm,不知道你说的偏短是短多少,少一点是不会有什么关系的,规范上也说了,插的再多也很难按连续梁计算,一般立柱都是按简支或双跨的模型计算的。玻璃幕墙工具河北电动吊篮租赁销售玻璃幕墙立柱与埋板间插芯件长度要求
金属与石材幕墙工程技术规范报批稿JGJ133-2013 第99页 铝合金闭口截面型材的立柱,宜设置长度不小于 250mm 的芯柱连接。芯柱一端与立柱应紧密滑动配合,另一端与立柱宜采用机械连接方式固定;相关文章
- 详细阅读
-
如果要学习建筑漫游,需要哪些软件呀详细阅读
建筑漫游主要涉及哪些软件呀?建模软件:一般提供的是3dmax文件,也可能是其他格式的文件 渲染软件:可以运用3ds max+光辉城市mars可以快速简便的为你提供效果好材质,满足建筑动画的
-
3D建模素材在建筑设计中的应用前景详细阅读
3d建模师的就业前景3d建模师的就业前景如下:3D建模目前应用在多个行业,比如游戏设计、工业设计、室内设计、影视设计等。1、游戏设计主要面向数字游戏开发生产行业,在数字游戏
-
555建筑网到底怎么样呢?详细阅读
53建筑网挂靠可靠吗可靠。根据天眼查大数据显示,53建筑网挂靠可靠。53挂靠网国内专业建筑挂靠网服务首选平台,提供2020-2021年最新一级建造师-建筑工程挂靠信息大全, 一级建造
-
你感觉古建筑木结构中的榫卯结点具详细阅读
什么是榫卯结构?榫卯结构,中国古建筑以木材、砖瓦为主要建筑材料,以木构架结构为主要的结构方式,由立柱、横梁、顺檩等主要构件建造而成,各个构件之间的结点以榫卯相吻合,构成富有
-
国内有没有相关的智能家居或智能建详细阅读
国内有那些智能家居展智能家居展会主要是广州、深圳、上海和北京有,云海最近参加的是2017第四届中国国际智能家居/智能硬件展览会,还参加如下: 1.2017年广州国际建筑电气技术及
-
有没有能查询建筑企业信用中国的ap详细阅读
建筑行业里面,有没手机软件可以查询全国的建筑企业资质的?除了建设通和自由找之外的?有的,使用筑龙标事通 也可以查询企业资质,人员资质信息,项目经理在建也都可以查询怎么查建筑
-
天正建筑软件字体问题详细阅读
天正建筑字体乱码怎么样解决??我是win10的,不过都差不多,自己刚改过来。 我的情况:Cad正常,但安装天正十九明显可以看见乱码字符,安装好以后就打不开. 以上,开始: 1、先检查你所有的
-
一张优秀的建筑钢笔画所应具有的特详细阅读
如何学习钢笔建筑设计手绘如何自学钢笔建筑手绘?作者:李老三来源:知乎
这个门楼开始画的并不满意,但是,本着一张图画到黑,不画完不罢休的二杆子精神,慢慢收拾出来了,客观地说,素描关 -
新家装修不足6个月搬进来,想买台净详细阅读
空气净化器除甲醛什么牌子好呢甲醛,无色,对人眼、鼻等器官可产生明显刺激,伴随于胶黏剂、油漆等常见家居装饰材料中。所以新房装修必须要去除甲醛后再入住,而除甲醛空气净化器能
